Een systeem van aluminium profielen zonder thermische isolatie bedoeld voor interne constructies: lichtgewicht wanden en beglazing, maar ook openslaande ramen.
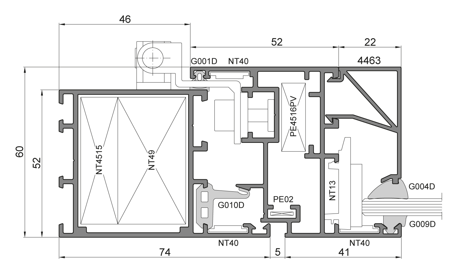
inbouwdiepte bedraagt 52 mm
- nauw verwant aan andere Ponzio-systemen
- profielen kunnen worden gedraaid of gekrompen
- glaslatten voor de groef in de euronorm
- mogelijkheid om raamvleugels uit te lijnen met het kozijn (één vlak aan de buitenkant)

