Een geavanceerd systeem met een driekamerprofielstructuur met zeer goede isolerende eigenschappen.
- Dankzij het kantel-schuifbeslag kunnen grote deurvleugels worden vervaardigd: L = 1650 mm, H = 2336 mm
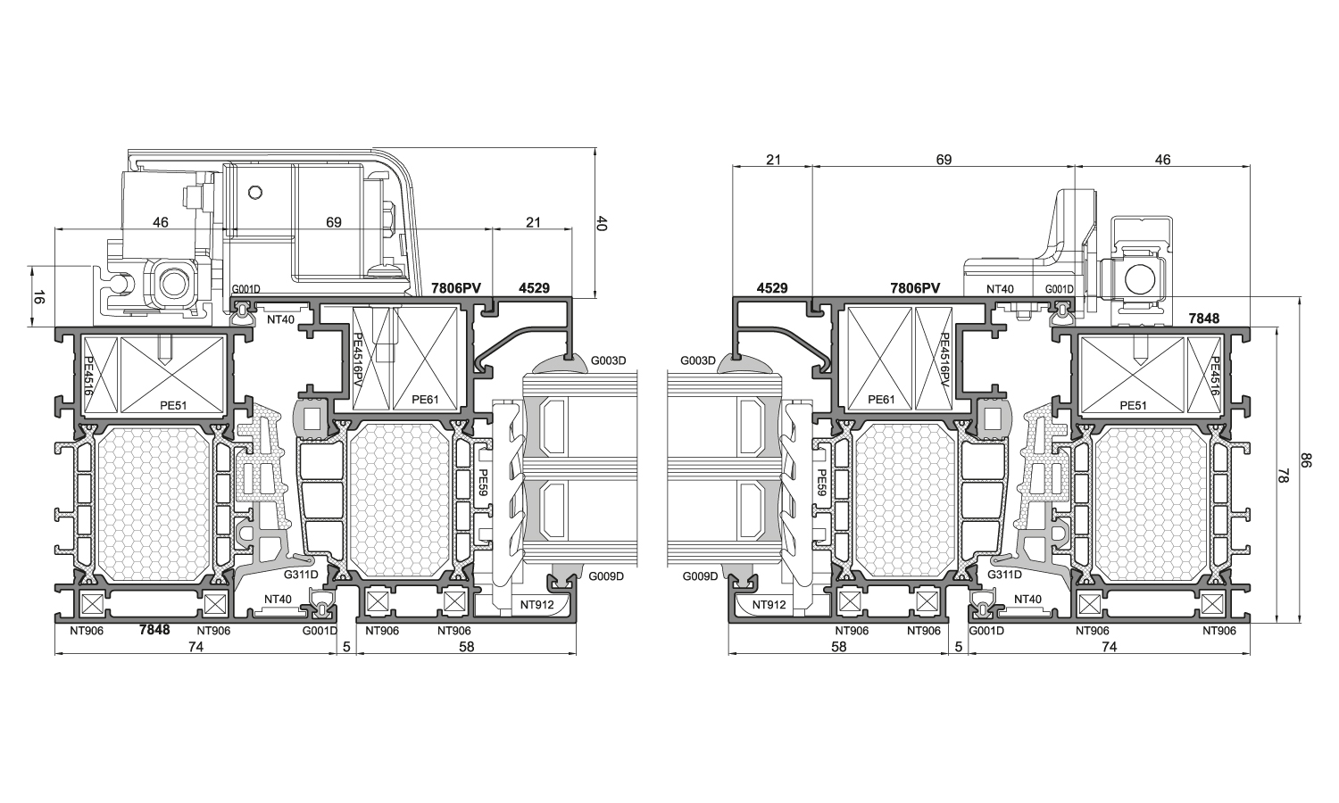
- structurele sectiediepte: voor deurkozijnen bedraagt deze 78 mm en voor deurvleugels 86 mm
- een geoptimaliseerde thermische onderbreking van 42 mm en een tweecomponenten centrale pakking garanderen hoge thermische parameters
- mogelijkheid om raamvleugels gelijk te laten lopen met het kozijn (één vlak aan de buitenkant)
- maximaal vleugelgewicht tot 160 kg
- vele hoekverbindingsmanieren
- EPDM-afdichtingen van synthetisch rubber
- Het systeem kent, afhankelijk van de gebruikte isolatie-inzetstukken, verschillende varianten: PE78N+, PE78NHI, PE78NHI+

