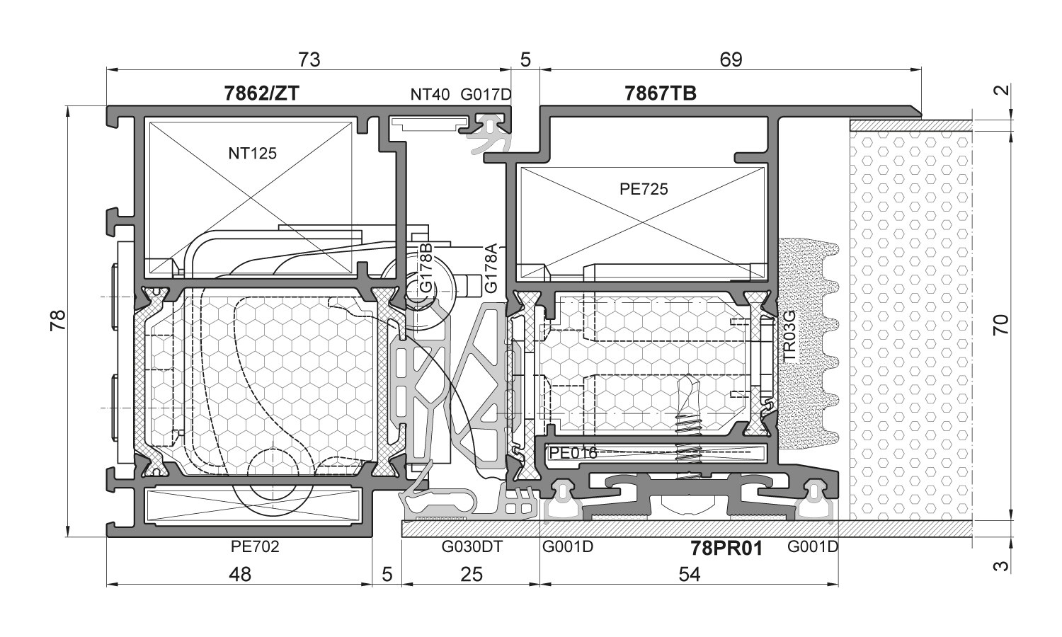
Een thermisch geïsoleerd systeem met drie kamers bedoeld voor het maken van deurconstructies.
- constructie van coplanaire profielen (sponningafstand – 18 mm)
- glaslatten voor de groef in de Euronorm
- geprofileerde thermische onderbrekingen, 34 mm breed
- eenvoudige verbinding van de deur met de vitrine door middel van speciaal ontworpen, compatibele profielen
- deurvleugels liggen gelijk met het kozijn
- mogelijkheid om grote structuren te maken
- veel hoekverbindingen
- grote vrijheid bij het selecteren van verschillende soorten fittingen
- verschillende varianten thermische isolatie, afhankelijk van de gebruikte isolatie-elementen: PE78N+, PE78NHI, PE78NHI+


