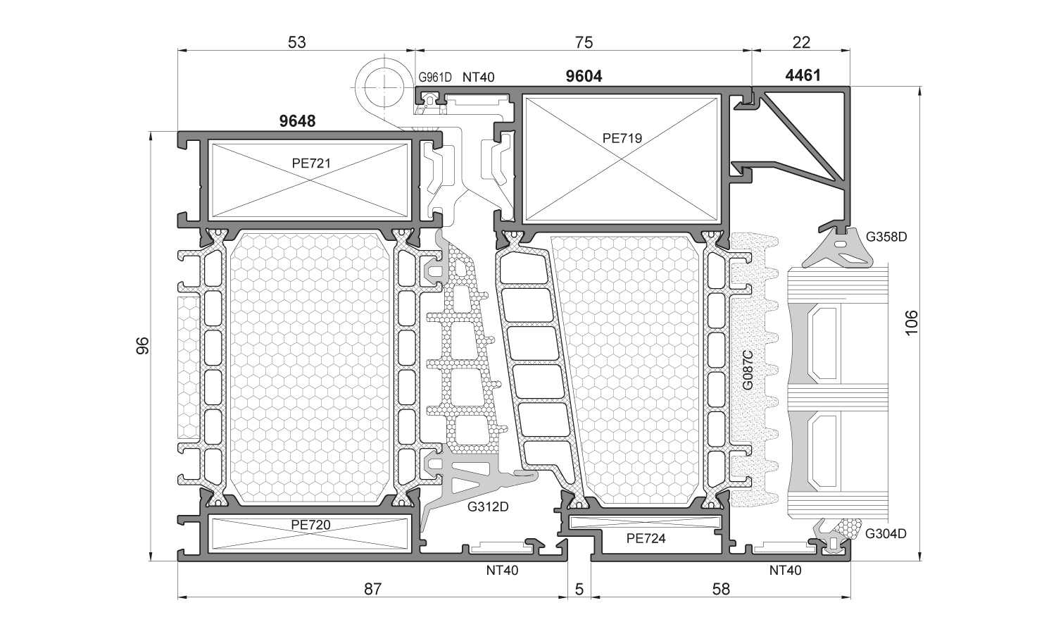
Een systeem met een driekamerprofielstructuur met een pasgroef in de Euronorm. Het is bedoeld voor de constructie van ramen met zeer hoge thermische isolatie-eisen.
- hoge thermische isolatie wordt gegarandeerd door thermische onderbrekingen met meerdere kamers met een breedte van 62 mm en een tweecomponenten centrale pakking
- mogelijkheid om grote structuren te maken
- mogelijkheid om raamvleugels gelijk te laten lopen met het kozijn (één vlak aan de buitenkant)
- vele hoekverbindingsmanieren
- glaslatten met een hoogte van 22 mm en 28 mm

