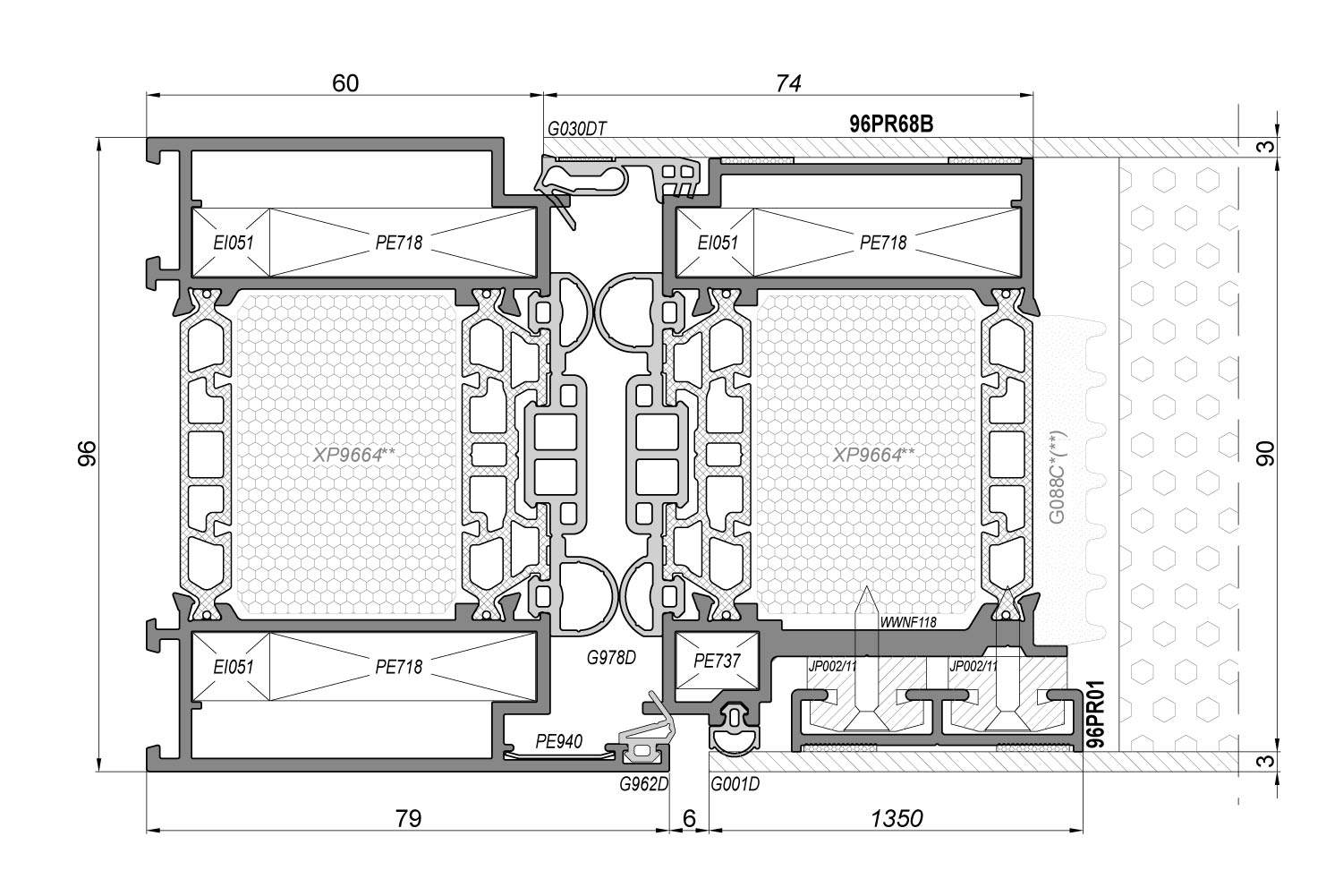
Een symmetrisch systeem met zeer hoge thermische isolatie bedoeld voor het maken van deurconstructies.
- constructie van coplanaire profielen (sponningafstand – 18 mm)
- één deurkozijn voor zowel naar binnen als naar buiten draaiende deuren
- de gebruikte geprofileerde thermische onderbrekingen met een breedte van 50 mm maakten het mogelijk een zeer hoge thermische isolatie te verkrijgen van Uf= 1,2W/(m2K)
- zeer goede fysieke parameters van het nieuwe systeem worden bevestigd door rapporten verkregen van het IFT ROSENHEIM-instituut
- dankzij het gebruik van een centrale afdichting verkrijgen we zeer goede parameters voor waterdichtheid en luchtinfiltratie
- deurvleugels liggen gelijk met het kozijn
- mogelijkheid om grote structuren te maken
- veel hoekverbindingen
- De nieuwe huisafdichting heeft een groot werkingsbereik en elimineert productie- en montagefouten
- mogelijkheid om onzichtbare drainage van de vleugel te maken

