Het systeem is bedoeld voor het construeren van lichte vliesgevels en andere ruimtelijke constructies.
- van buitenaf een uniforme, gladde glaswand gescheiden door een structuur van verticale en horizontale lijnen, 22 mm breed bij gebruik van een siliconenvoeg of 28 mm bij gebruik van een pakking in de ruimte tussen de ruiten
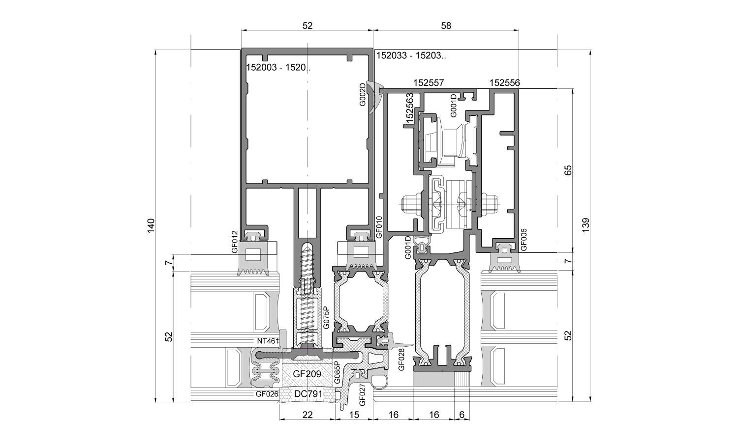
- staanderdraagconstructie van het Ponzio PF152-systeem met een breed scala aan profielen
- mogelijkheid om vullingen te gebruiken in de vorm van Ponzio-systeemramen
- Mogelijkheid om kantelramen naast elkaar te installeren, onafhankelijk openend
- mogelijkheid tot gebruik van driedubbele beglazing (tot een beglazingsdikte van 70 mm)
- profiel buigen

