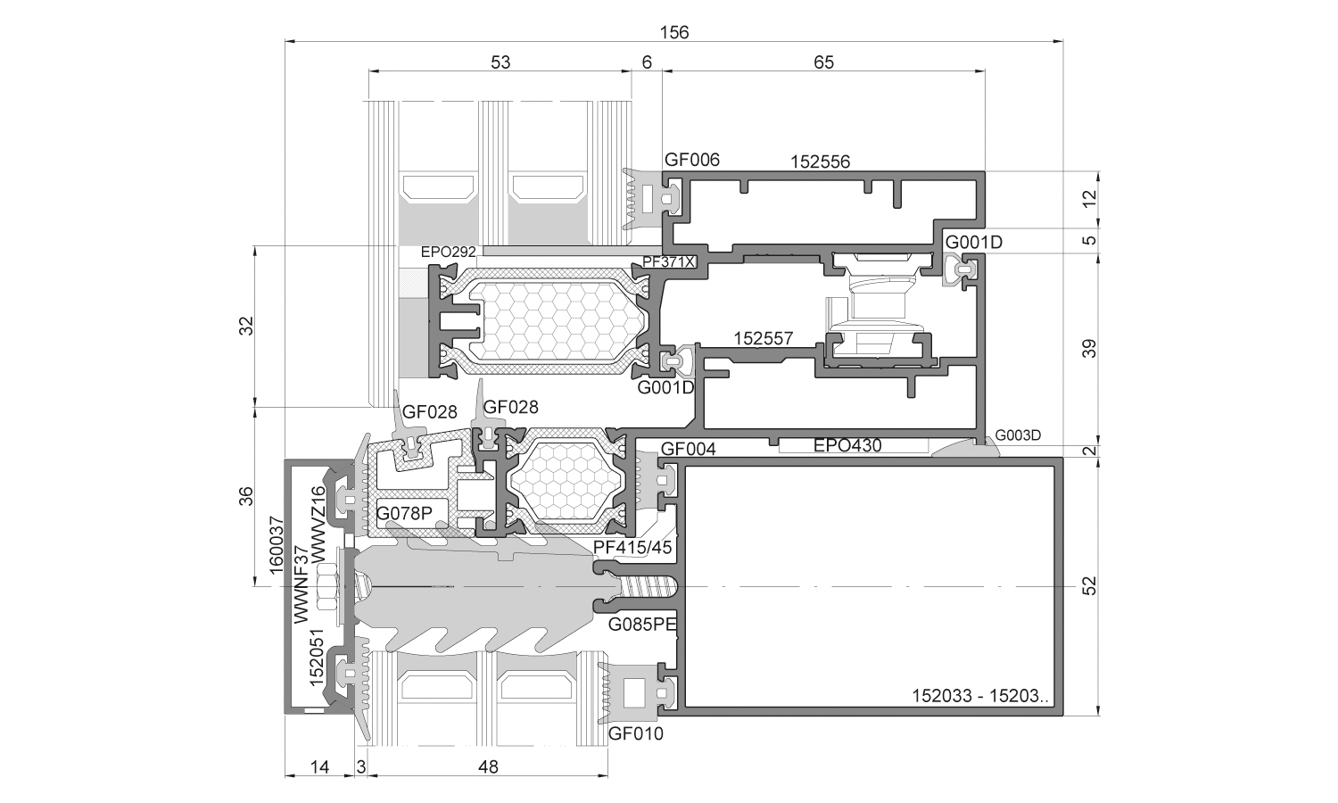
Een systeem van paal- en balkconstructies bedoeld voor de constructie van vliesgevels, daken en dakramen, met verhoogde thermische isolatie.
Kenmerkend
- hoge thermische en akoestische isolatie, waterdichtheid en weerstand tegen windbelasting
- Ponzio PF152HI PASSIEVE variant – met de hoogste thermische isolatie (certificaat van het Passiefhuis Instituut in Darmstadt, phA-klasse)
- oplossingen met stalen en houten onderconstructie
- oplossingen voor de latei en vensterbankstrook met EI60 branddichtheid en isolatie
- standaardbreedte van externe maskeerstrips – 51 mm
- vrijheid om de gevel qua geometrie en kleur vorm te geven
- verschillende soorten externe decoratieve elementen
- versie “horizontale of verticale lijn”.
- profiel buigen
- mogelijkheid om vullingen te gebruiken in de vorm van Ponzio-systeemramen
- maximaal gewicht glas 700 kg
- verband met andere Ponzio-regelingen

