Spring naar de inhoud
FIRKUS
Startpagina
Gevels
Deuren en ramen
Menu aan-/uitzetten
Ramen
Deur
Brandbeveiliging
Schuifdeuren
Projecten
Offerte
Contact
FIRKUS
Main Menu
Startpagina
Gevels
Deuren en ramen
Menu aan-/uitzetten
Ramen
Deur
Brandbeveiliging
Schuifdeuren
Projecten
Offerte
Contact
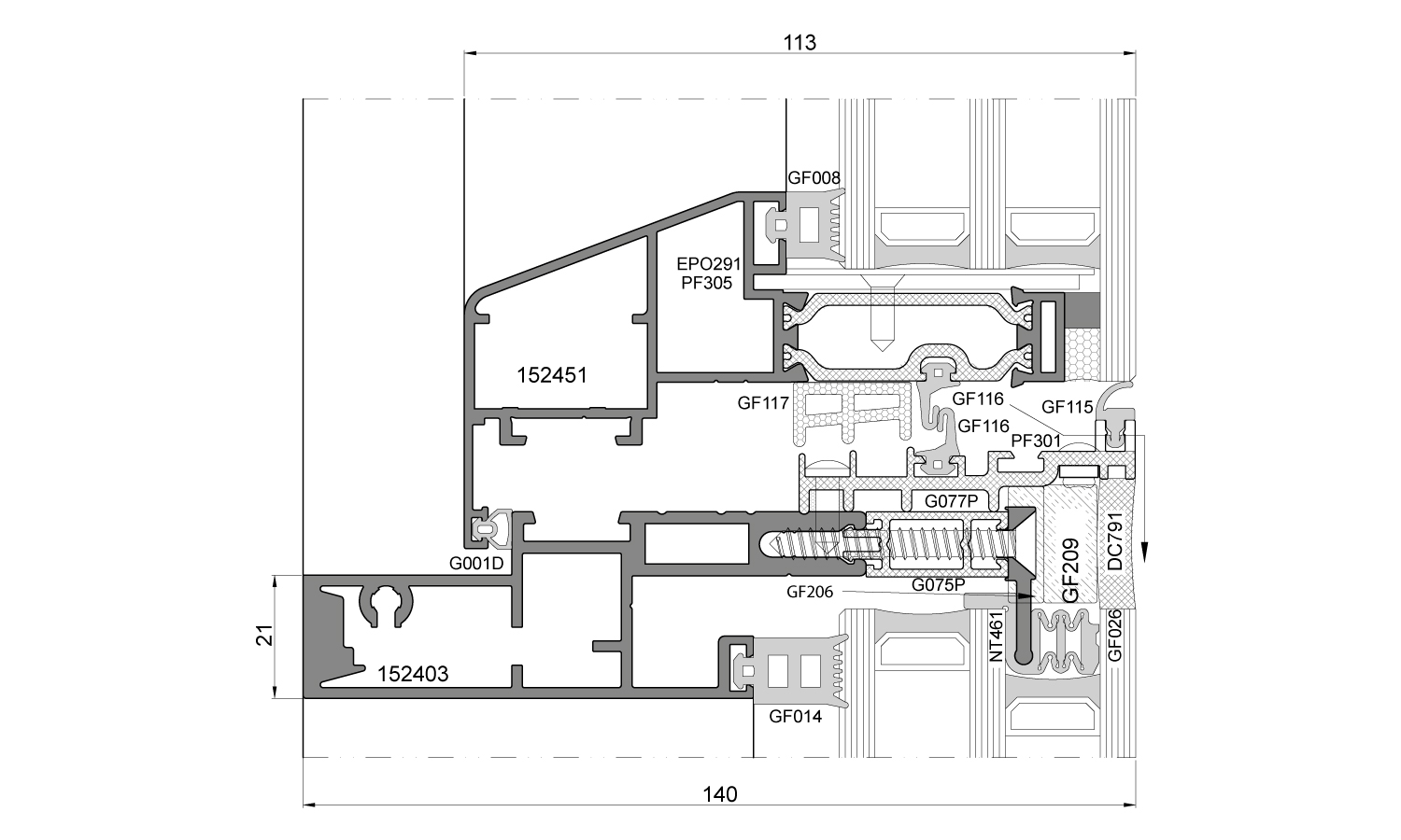
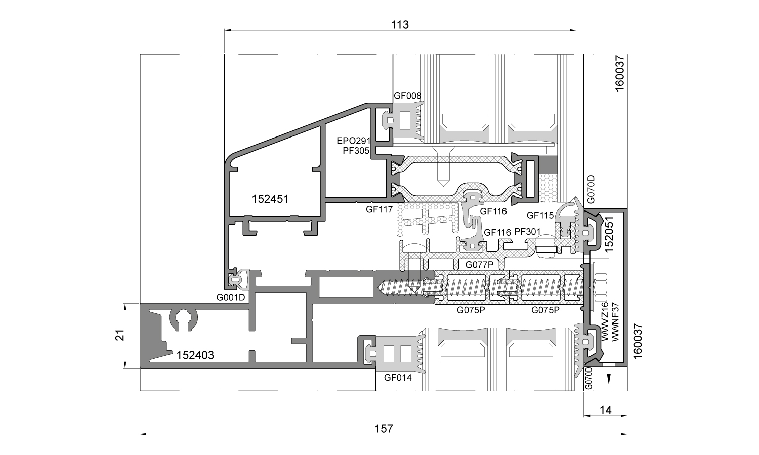
Ponzio PF152IW
Scroll naar boven