Een systeem van paal- en balkconstructies bedoeld voor het construeren van lichtgewicht vliesgevels.
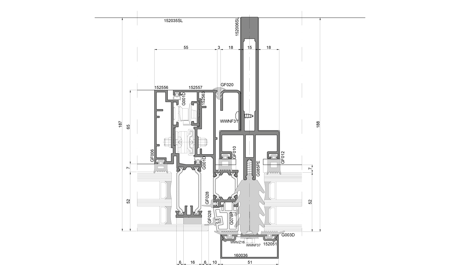
- de uitwendige breedte van de stijlen en dwarsbalken bedraagt 52 mm
- de interne (zichtbare) breedte van de kolommen en liggers bedraagt 15 mm
- de breedte van de externe maskeerstrips bedraagt 51 mm
- het systeem zorgt voor een goede thermische en akoestische isolatie, waterdichtheid en weerstand tegen windbelasting (het is de PF152-versie)
- Met het systeem kunt u de gevel vrij vormgeven qua geometrie en kleur
- kan worden gemaakt in een “horizontale” of “verticale lijn” versie
- mogelijkheid om verschillende soorten externe decoratieve elementen te gebruiken
- gekoppeld aan andere Ponzio-regelingen

