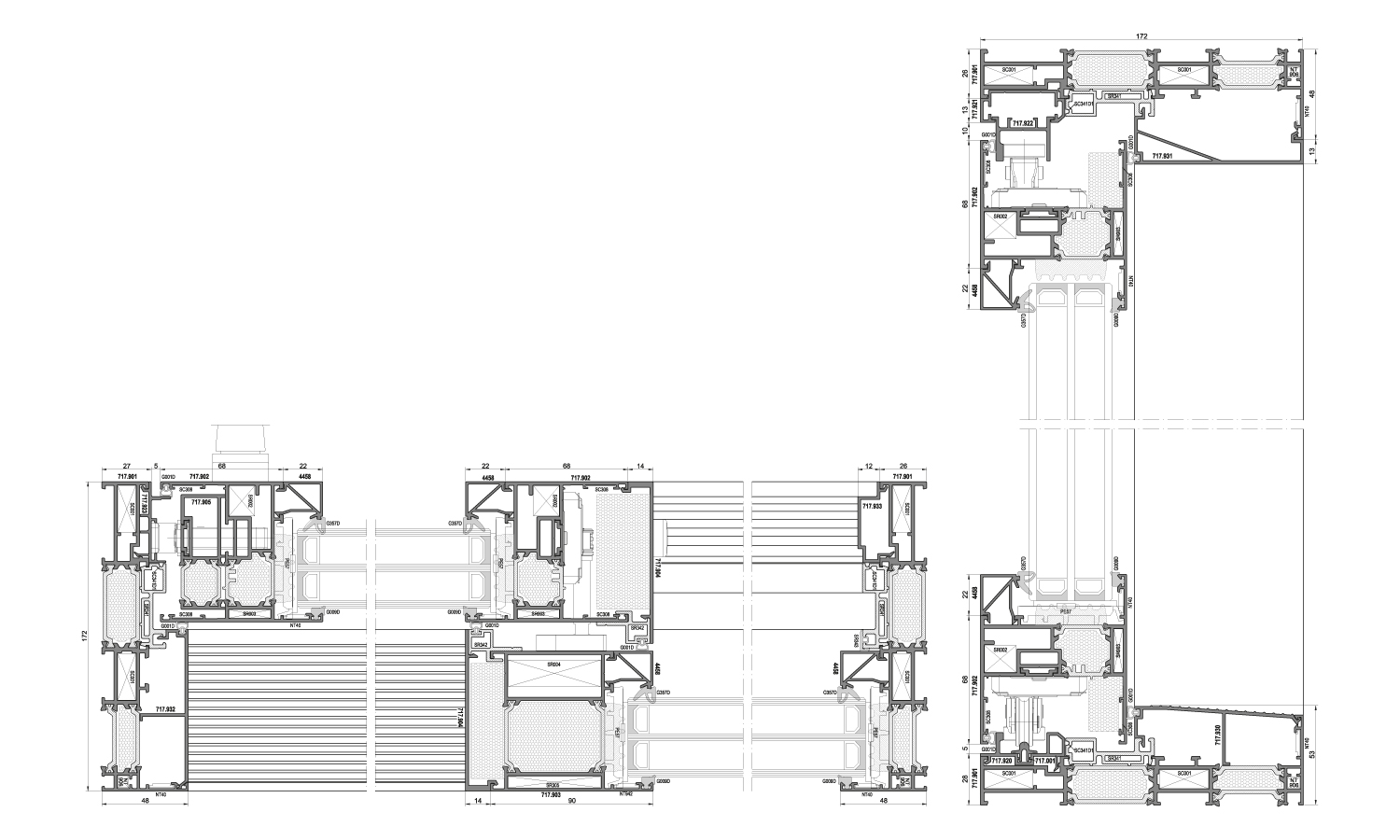
Een thermisch geïsoleerd schuifsysteem met deurafdichting bedoeld voor het maken van externe bouwelementen.
Kenmerkend
- sluitmethode analoog aan openslaande ramen – hoge dichtheid tegen weersomstandigheden
- geen verticale wrijving bij het verplaatsen van de vleugel door deze 8 mm te openen
- de bouwdiepte van de profielen bedraagt 78 mm bij het deurblad en 172 mm bij het kozijn
- het systeem (Ponzio SL1700TT) maakt de constructie mogelijk van constructies volgens schema A (één schuifblad, vaste beglazing in het frame) en schema C (twee schuifvleugels, vaste beglazing in het frame)

