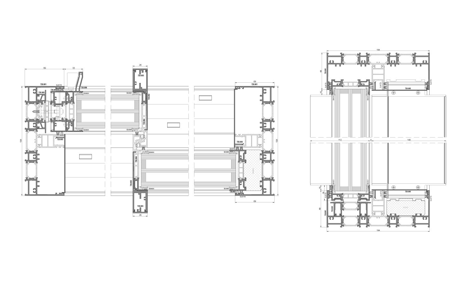
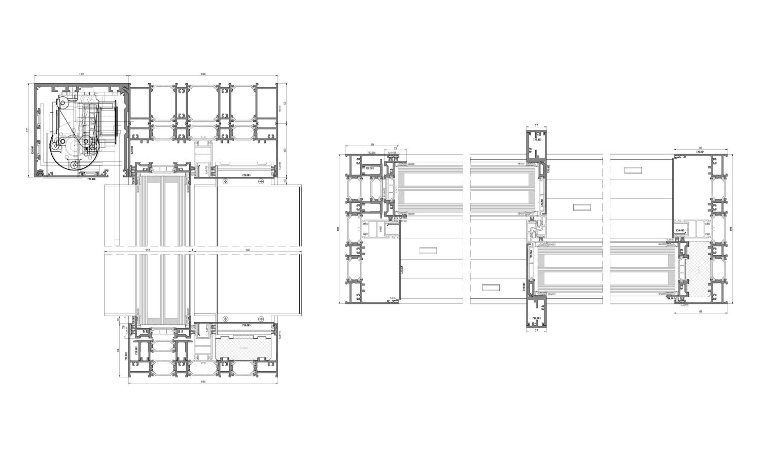
Schuifdeursysteem waardoor zeer grote afmetingen mogelijk zijn. Een structuur waarin alleen smalle palen zichtbaar zijn. Het wekt de indruk zo transparant mogelijk te zijn.
- drempelloze doorgang van de woning naar het terras
- maximale toegang tot daglicht
- esthetische uitstraling van de structuur dankzij de minimale breedte van de centrale paal – 26 mm
- onbeperkte breedte van de gehele constructie
- Dankzij het gebruik van 3 rijen thermische onderbrekingen verkrijgen we een zeer goede thermische isolatie
- mogelijkheid om een automatische aandrijving te gebruiken
- mogelijkheid om meerpuntssluiting te gebruiken
- verticale profielen – bladeren volledig gelijk met het frameprofiel
- horizontale profielen – zichtbaar deel is 10 mm


