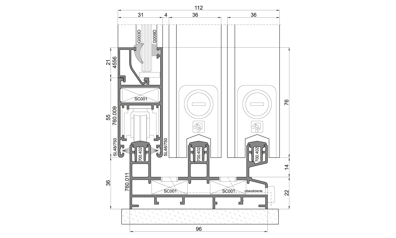
Een systeem zonder thermische isolatie bedoeld voor het maken van binnen- of buitenramen en schuifdeuren, bijvoorbeeld diverse soorten schuifscheidingswanden, balkons en loggia’s.
- Het aanbod omvat deurkozijnen met 2 en 3 sporen
- mogelijkheid om constructies met meer vleugels in één frame te bouwen
- nauwe aansluiting met andere Ponzio-systemen
- Ponzio systeembeslag

