Het systeem is bedoeld voor het maken van thermisch geïsoleerde schuiframen of schuifsegmenten voor uitwendige ontwikkelingselementen, bijvoorbeeld balkons en loggia’s.
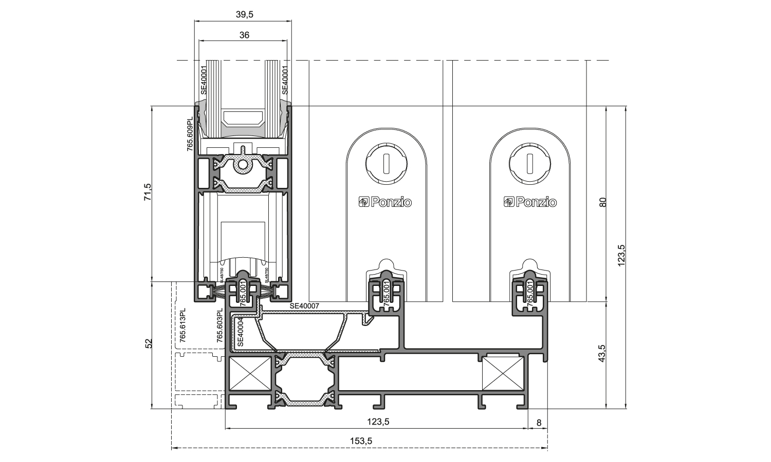
- minimale breedte van de middenstijl 37 mm – slankheid en stijfheid van de constructie
- Ponzio systeembeslag
- zitting- en borstelafdichtingen
- nauwe aansluiting met andere Ponzio-systemen
- mogelijkheid om hoekverbindingen te maken in een hoek van 90° of 45°
- mogelijkheid om speciaal beslag te gebruiken om verticaal verschuifbare voederramen te maken
- oplossing verborgen in de muur

